
SKU:AGT-M-4IN1BUCKET
43" 4-in-1 Combo Bucket Mini Skid Steer | AGT-M-4IN1BUCKET
43" 4-in-1 Combo Bucket Mini Skid Steer | AGT-M-4IN1BUCKET

Product Overview
The AGT-M-4IN1BUCKET is a 43-inch 4-in-1 combination bucket made for mini skid steer loaders. Built with high-strength steel, this multi-function bucket serves as a standard scoop, clamping grapple, dozer blade, and leveling tool — ideal for operators who need versatility without swapping attachments.
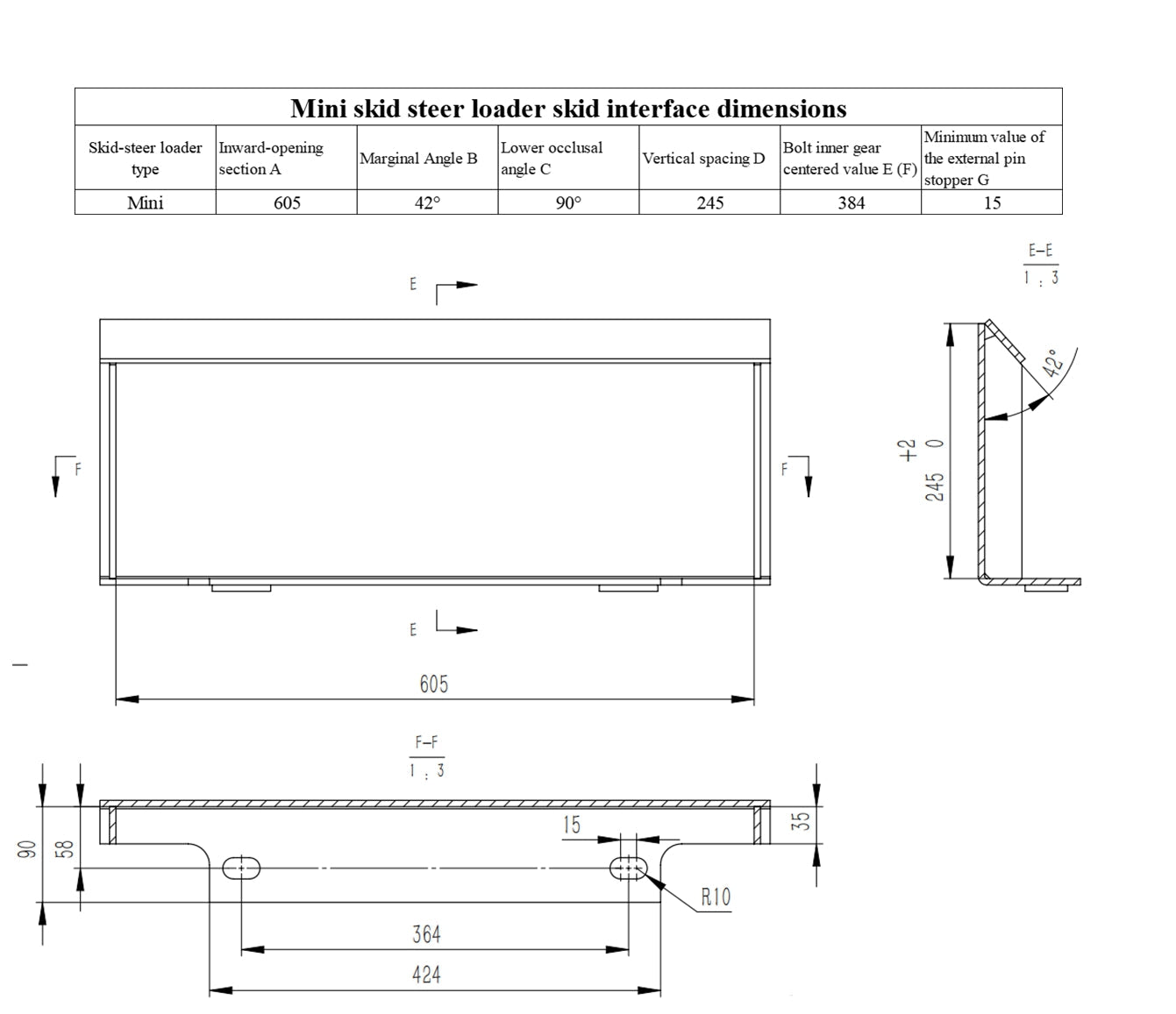
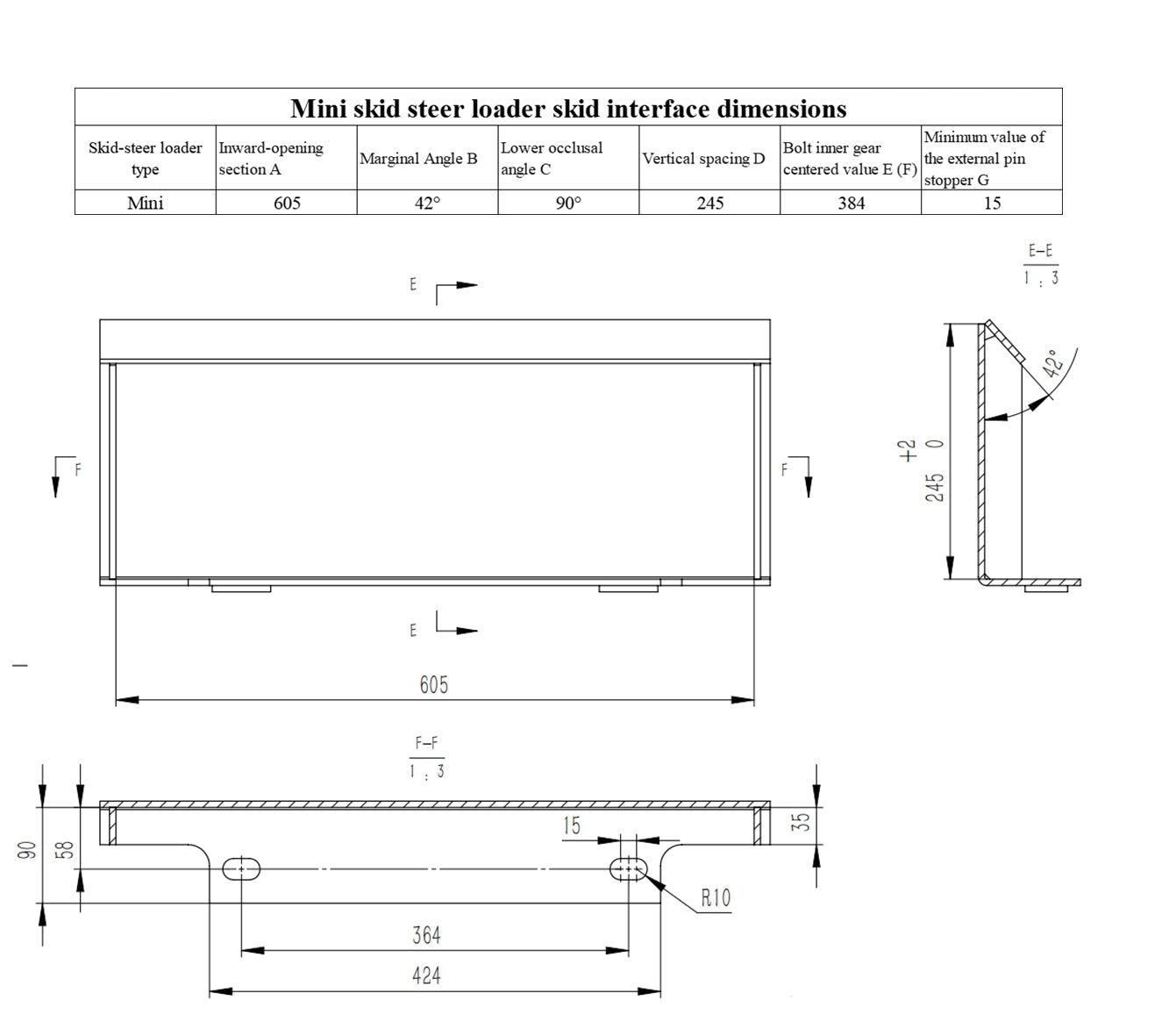
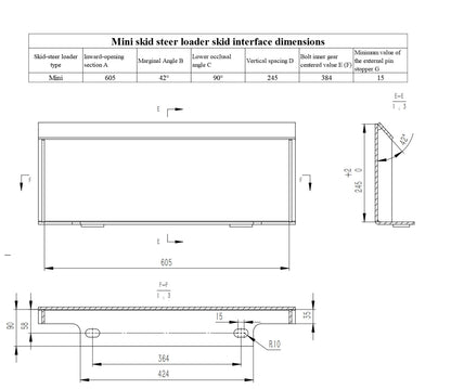
This Attachments is Designed to Fit MOST of AGT Mini Skid Steers Which Can be Found Below:
-
AGT-YSRT14\MX-MRT14\MX-CRT23\CBT23\AGT-KTT23\CFG-KBT23\LBT23\LRT23\KKT27
Benefits
-
Reduces need to carry multiple attachments — do digging, clamping, leveling, and backfilling with one tool
-
Saves time on the jobsite by eliminating frequent attachment changes
-
Durable build helps endure wear and tear across tough terrain and material handling
-
Compact size still offers strong capacity while maintaining maneuverability
Applications
-
Landscaping jobs (moving rock, clearing brush, grading)
-
Material handling (logs, brush, debris)
-
Backfilling trenches and utility work
-
Site clean-up, leveling, and general utility tasks






