
SKU:AGT-M-HMR
Mini Skid Steer Breaker-Hammer | AGT-M-HMR
Mini Skid Steer Breaker-Hammer | AGT-M-HMR

Product Overview
The AGT-M-HMR breaker-hammer is a rugged hydraulic attachment designed for usewith mini skid steer loaders. Built to handle tough demolition and breaking tasks, itdelivers powerful impact energy for breaking concrete, asphalt, rock, and other hardmaterials. Compact and efficient, this hammer is ideal for construction, roadwork, andsite preparation projects.
BENEFITS:
Makes demolition and breaking faster and more efficient
Reduces manual labor and increases productivity
Provides reliable performance under tough jobsite conditions
Supports long-term durability with robust components
APPLICATIONS:
Designed for mini skid steer loaders
Ideal for breaking concrete slabs, asphalt, rock, and other hard surfaces
Suitable for construction, road maintenance, landscaping, and site prep projects
WHAT'S IN THE BOX:
2 Chisels Bits
Hammer Body
Two Hoses: 2 Quick Attach, Hammer Body (Fitting: DlN16 Male),Quick Attach(Fitting:DIN14)
Tool Box: Charge Kit, 27-24 Wrench, Pin Lock Driver
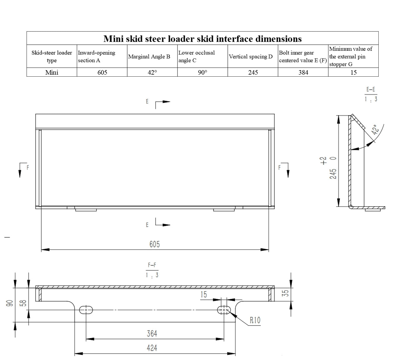
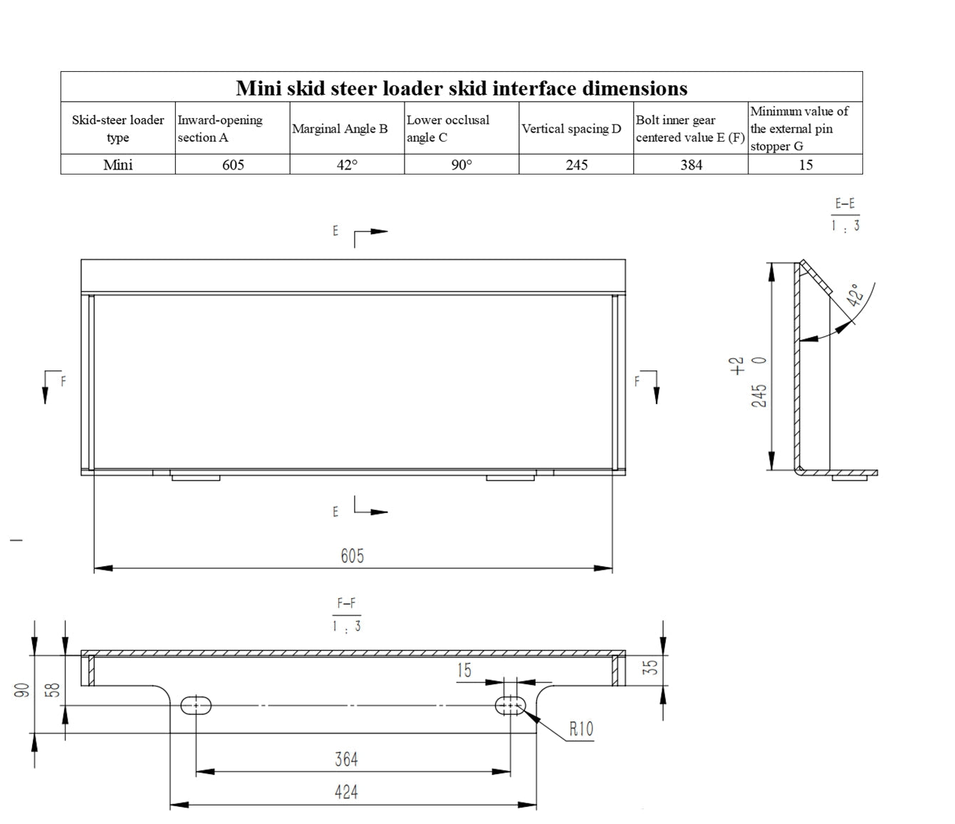
This Attachments is Designed to Fit MOST of AGT Mini Skid Steers Which Can be
Found Below:
AGT-YSRT14\MX-MRT14\MX-CRT23\CBT23\AGT-KTT23\CFG-KBT23\CFG-KRT23\LBT23\LRT23\KKT27






